Warning: mysqli_real_connect(): Headers and client library minor version mismatch. Headers:110407 Library:100505 in /home/desdeels/public_html/wp-includes/wp-db.php on line 1653
Confirman aporte de Nación para terminar la Casa de la Cultura de San Martín de los Andes | Desde el Sur Digital

Cultura

5 de enero 2015

Confirman aporte de Nación para terminar la Casa de la Cultura de San Martín de los Andes

Conocida desde el año 2010 como la Casa de la Cultura del Bicentenario este proyecto se encuentra parado por falta de fondos. Está ubicado en la esquina de Tte. Gral. Roca y Cnel. Díaz y su aprobación data del año 2010.

Fue cuando a través de una propuesta de  la Secretaría General de Presidencia, se aprobó el proyecto después de gestiones realizadas por quien era en ese momento intendente de la ciudad, Luz María Sapag.

Los contactos realizados  fueron ante el mismo Oscar Parrilli, que era responsable del área. San Martín de los Andes no estaba en el listado pero por pedido de la ex intendente, fue incluido en entre las propuestas del país.

Meses después Luz Sapag murió trágicamente en un accidente de tránsito y el proyecto quedó en manos de quien  asumió la intendencia Cristina Frugoni. Fueron también arduas gestiones las realizadas que solo lograron un aporte mínimo, que era  el que realmente aseguraba Nación. Una cifra cercana a los 160 mil pesos. Luego se produjo la erupción del volcán Puyehue en el 2011 y la ciudad entró en emergencia y   las necesidades eran otras. Fue muy comentado el caso de que ese importe se utilizó para limpieza de la ciudad, con el compromiso del gobierno provincial de que se restituiría.

Pasó el tiempo y la nueva gestión de Juan Carlos Fernández, siguió lentamente con la obra que ahora está paralizada. En la última visita del jefe de gabinete, Jorge Capitanich,  se confirmó que el gobierno  nacional ya destinó mediante el Ministerio de Trabajo los fondos, 1.500.000 pesos serán destinados dijo el funcionario ante la pregunta de Desde el Sur Digital, para garantizar la finalización de esta obra.

El proyecto  es  específico para la construcción y si bien se adapta a cada ciudad, las directivas ya vienen aprobadas desde el gobierno central.

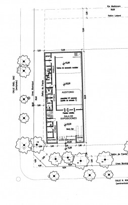
El objetivo es el desarrollo de actividades culturales, recreativas y educativas. El edificio  cuenta con sala de exposición permanente de material que testimonie la historia y la identidad de cada comunidad, y con una sala de proyección de cine, ya que en estos espacios habrá una sede del INCAA-Instituto Nacional del Cine.

Los sectores que se consideran necesarios en el edificio que se construirá, son una sala histórica y de exposiciones, un espacio de cine, teatro y auditorio que será adaptado a las necesidades de nuestra ciudad y que se prevé para 200 personas, un aula taller para desarrollo de actividades culturales-teatro, música, danza, pintura, fotografía, entre otras previstas, abiertas a la participación de la comunidad.

En el plano edilicio se consideran vestuarios, sanitarios, un bar, oficinas y espacios verdes, teniendo en cuenta una superficie total de 426 metros cuadrados.

Cuando este edificio esté concluido se instalará en el mismo también la Secretaría de Cultura, Educación y Deporte, que como se sabe actualmente funciona en un estrecho espacio de la sala de exposiciones.

(Imagen del boceto del plano que  define los espacios del proyecto original)

Más Artículos

19 de abril 2026

PIDEN QUE EL REFUGIO GRAEF SE DECLARE PATRIMONIO HISTORICO PROVINCIAL

Es uno de los íconos en el marco del patrimonio histórico en el cerro Chapelco. Y fue construido por los vecinos y Federico Graef en 1948. Y sin duda es imprescindible protegerlo a nivel provincial y reconocer en él, un símbolo de las épocas en que los vecinos del pueblo subían a pie la montaña, y en esa construcción tenían un punto de refugio y encuentro. Es así que el […]

Leer más...

2 de abril 2026

44 AÑOS DE MEMORIA

SE REALIZÓ EN EL TEATRO SAN JOSÉ Y EN LA PLAZA SAN MARTÍN LA VIGILIA POR MALVINAS Vecinos y familias acompañaron a los veteranos de la Guerra de Malvinas en la vigilia por un nuevo aniversario del Día del Veterano y de los Caídos en la Guerra de Malvinas, que se realizó en el teatro San José de nuestra ciudad, acompañados por autoridades municipales, representantes del Ejército y de las […]

Leer más...

25 de marzo 2026

Plaza de la Memoria “Fito Teberna” , un mural que lo recuerda, su imagen y la historia que 50 años después resurge de quien desapareció en La Plata

Por Graciela Vázquez Moure Yo debo decir que conocí su historia en el 2001. Cuando una estudiante de Comunicación en La Plata, hizo un trabajo práctico y una investigación. Me trajo su extensa historia a La Bandurria, periódico que yo dirigía. Y obvio la publiqué. Ella era nacida en nuestra ciudad. Esa historia publicada en el periódico local, hizo que algunos familiares jóvenes se enteraran qué había sucedido con “Fito”, […]

Leer más...

25 de marzo 2026

SE INAUGURO LA PLAZA DE LA MEMORIA RODOLFO «FITO» TEBERNA

Gran cantidad de vecinas y vecinos y de representantes de organizaciones sociales, de derechos humanos y políticas recordaron los 50 años del último golpe cívico militar en Argentina, durante una jornada que contó con la presencia del intendente Carlos Saloniti y de funcionarios municipales. La conmemoración del Día Nacional de la Memoria por la Verdad y la Justicia incluyó la inauguración de la nueva Plaza de la Memoria Rodolfo Fito […]

Leer más...

19 de marzo 2026

SE CUMPLEN 50 AÑOS DEL INICIO DEL GOBIERNO MILITAR CUANDO COMENZO EL CICLO MÁS OSCURO DE NUESTRO PAÍS

DESDE LA SECRETARIA DE CULTURA INFORMAN LAS DISTINTAS ACTIVIDADES ORGANIZADAS PARA LA SEMANA El secretario de Cultura del Municipio, Gustavo Santos, detalló las actividades previstas para los próximos días, con motivo de conmemorarse los 50 años del último golpe de Estado en Argentina. El calendario incluye la inauguración de la Plaza de la Memoria «Rodolfo Fito Teberna»; actividades en el Teatro San José y espectáculos de danza en los barrios. […]

Leer más...